Серверные шкафы Telecore SRV - напольные решения, предназначенные для монтажа и обслуживания телекоммуникационного и серверного оборудования стандарта 19". В зависимости от модели семейства, емкость перфорированного профиля составляет 42 или 48 U, позволяя заказчику оптимизировать использование рабочего пространства.

Описание серверных шкафов Telecore SRV
Серверные шкафы семейства Telecore SRV - прочные и универсальные решения, позволяющие надежно разместить и удобно обслуживать телекоммуникационное и вычислительное оборудование с форм-фактором стандарта 19”. Широкий модельный ряд семейства включает в себя модели с емкостью перфорированного профиля 42 или 48U, предусмотрена возможность использования шкафов как в роли автономным конструктивных решений, так и в роли элементов комплекса. Отдельно стоит отметить высокую эргономику решений, что упрощает их обслуживание, и возможность развертывания систем с большим количеством активного оборудования, кабельных соединений и дополнительных аксессуаров.
Особенности и преимущества решений
- Конструкция серверных шкафов Telecore SRV включает в себя сборно-сварной корпус, изготовленный из высокопрочной стали и оснащенный усиленными несущими рамами и швеллерами крепления. Это гарантирует высокую прочность изделию и возможность разместить большое количество оборудования.
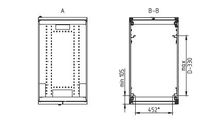
- Представленные шкафы соответствуют всем необходимым отраслевым требованиям: изготовленные согласно ГОСТ 15150, решения предназначены для монтажа оборудования стандарта 19” в соответствии с ГОСТ 28601.2 (МЭК 297-2) и ТУ 4083-002-88363779-2010. Перфорация несущих профилей соответствует стандарту DIN 41494-7, а максимальная глубина устанавливаемого оборудования может составлять до 900 мм.
- Для максимального удобства обслуживания и монтажа оборудования предусмотрен как фронтальный, так и тыловой доступ к нему, а также четыре легкосъемные боковые панели. Двери серверных шкафов и боковые панели комплектуются замками с поворотными ручками, повышая уровень безопасности и исключая несанкционированный доступ к размещенному оборудованию.
- Серверные шкафы Telecore SRV комплектуются четырьмя ножками с винтовой резьбой для компенсации неровностей пола и максимально точного позиционирования оборудования. Возможность точной ориентации шкафов по горизонтали и вертикали повышает срок службы размещенного оборудования.
- Четыре ролика в нижней части шкафов позволяют перемещать их усилиями одного человека. В сочетании с вводом кабелей через кабельные каналы в верхней части шкафа и наличием легкосъемной перфорированной крыши это существенно упрощает развертывание и обслуживание оборудования.
Комплектность TelecoreSRV:
Базовая комплектация:
Опции (согласно требованиям заказчика):
|
|
Материалы TelecoreSRV:
|
|
Технические характеристики серверных напольных шкафов Telecore SRV
| Значение входного напряжения, В | 220±5% (в зависимости от устанавливаемого оборудования) | |||
| Частота питающей сети, Гц | 50±0,4 | |||
| Установочные размеры: | соответствуют стандарту 19" ГОСТ 28601.2-90 (IEC 297) | |||
| Степень защиты | IP21 | |||
| Климатическое исполнение | УХЛ4 | |||
| Наименование (WхDхH мм) | Шкаф серверный Telecore SRV 600х1070х42U | Шкаф серверный Telecore SRV 600х1070х48U | Шкаф серверный Telecore SRV 600х1200х42U | Шкаф серверный Telecore SRV 600х1200х48U |
| Артикул для заказа | srv.60.10.20 | srv.60.10.23 | srv.60.12.20 | srv.60.12.23 |
| "Габаритные размеры (с ножками и роликами):" | ||||
| ширина W, мм | 600 | 600 | 600 | 600 |
| глубина D, мм | 1070 | 1070 | 1200 | 1200 |
| высота H, мм | 2000 | 2270 | 2000 | 2270 |
| Максимальный угол открытия дверей, градусов | 135 | 135 | 135 | 135 |
| Монтажный профиль перфорированный: | 42U | 48U | 42U | 48U |
| Максимальная глубина устанавливаемого оборудования, мм | 700 | 700 | 900 | 900 |
| Наименование (WхDхH мм) | Шкаф серверный Telecore SRV 800х1070х42U | Шкаф серверный Telecore SRV 800х1070х48U | Шкаф серверный Telecore SRV 800х1200х42U | Шкаф серверный Telecore SRV 800х1200х48U |
| Артикул для заказа | srv.80.10.20 | srv.80.10.23 | srv.80.12.20 | srv.80.12.23 |
| "Габаритные размеры(с ножками и роликами):" | ||||
| ширина W, мм | 800 | 800 | 800 | 800 |
| глубина D, мм | 1070 | 1070 | 1200 | 1200 |
| высота H, мм | 2000 | 2270 | 2000 | 2270 |
| Максимальный угол открытия дверей, градусов | 135 | 135 | 135 | 135 |
| Монтажный профиль перфорированный: | 42U | 48U | 42U | 48U |
| Максимальная глубина устанавливаемого оборудования, мм | 700 | 700 | 900 | 900 |
